บ้านยอดนิยมครอบครัวขนาดใหญ่

แบบบ้าน Wynn 387

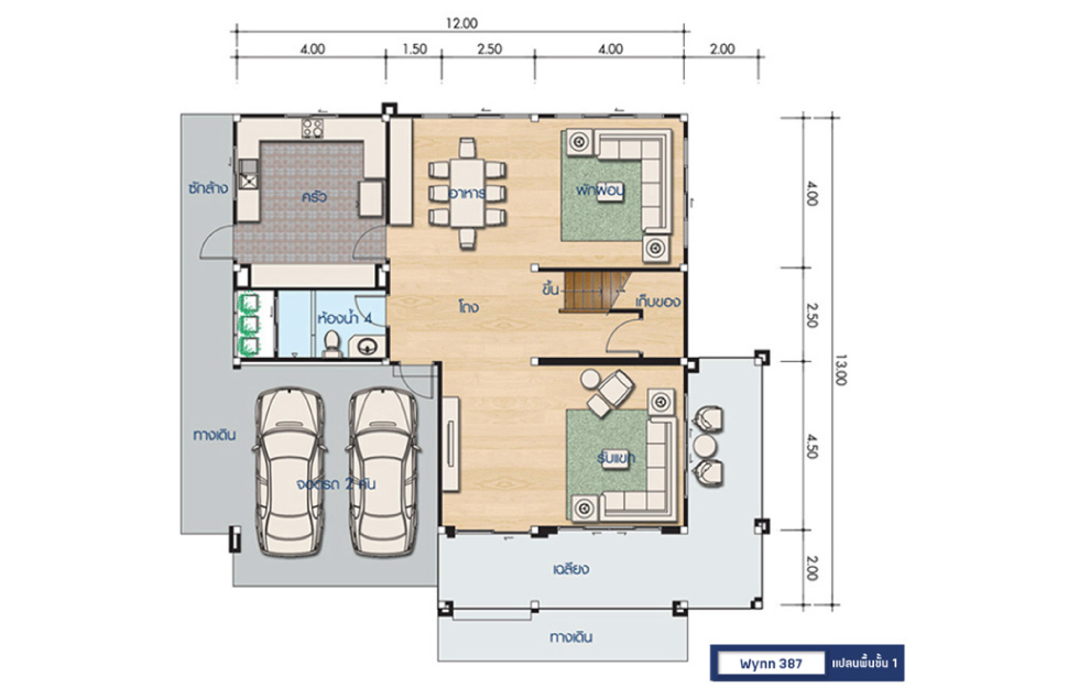
พื้นที่ : 387 ตร.ม. ขนาดที่ดิน : 78 ตร.วา

4 ห้องนอน 4 ห้องน้ำ 2 ที่จอดรถ

รายละเอียด
ช่วงราคา8-10 ล้านบาท
จำนวนชั้น 2 ชั้น
StyleModern
พื้นที่387 ตร.ม.
ขนาดที่ดิน78 ตร.วา
ห้องนอน / ห้องน้ำ4 / 4
ห้องแม่บ้าน / ที่จอดรถ0 / 2
ขนาดเส้นรอบบ้าน14.20x13.20
ขนาดที่ดิน18.20x17.20

แบบบ้านทั้งหมด