บ้านใหม่ครอบครัวขนาดกลาง

Flow – D 253

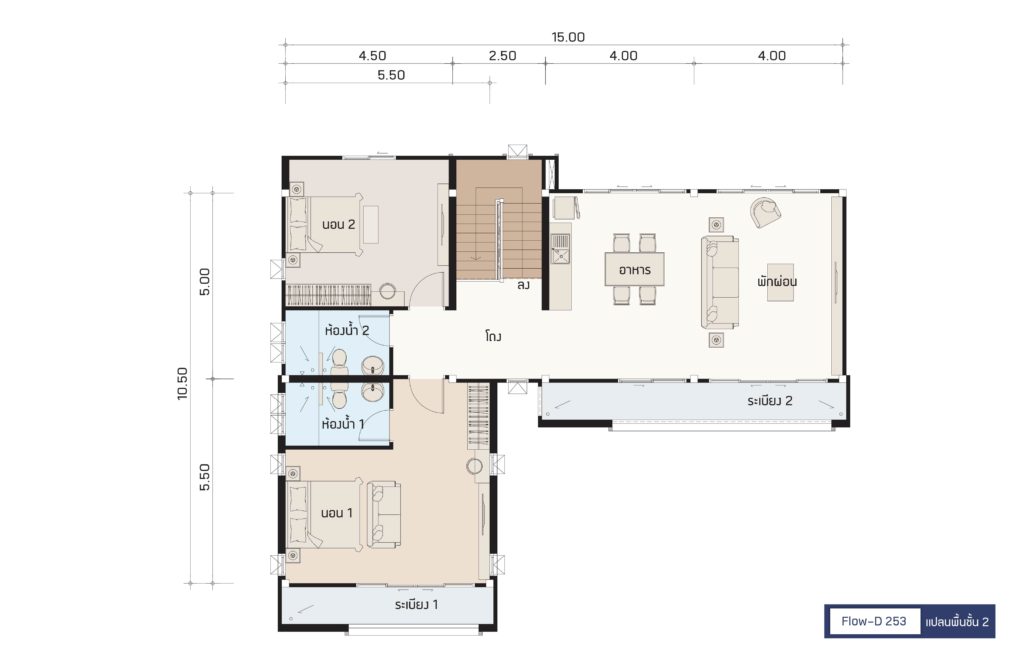
พื้นที่ : 253 ตร.ม. ขนาดที่ดิน : 81 ตร.วา

2 ห้องนอน 3 ห้องน้ำ 2 ที่จอดรถ

รายละเอียด
ช่วงราคา4-6 ล้านบาท
จำนวนชั้น 2 ชั้น
StyleModern
พื้นที่253 ตร.ม.
ขนาดที่ดิน81 ตร.วา
ห้องนอน / ห้องน้ำ2 / 3
ห้องแม่บ้าน / ที่จอดรถ0 / 2
ขนาดเส้นรอบบ้าน12.95x15.40
ขนาดที่ดิน16.80x19.20

แบบบ้านทั้งหมด