บ้านใหม่ครอบครัวขนาดใหญ่

Flow – G 375

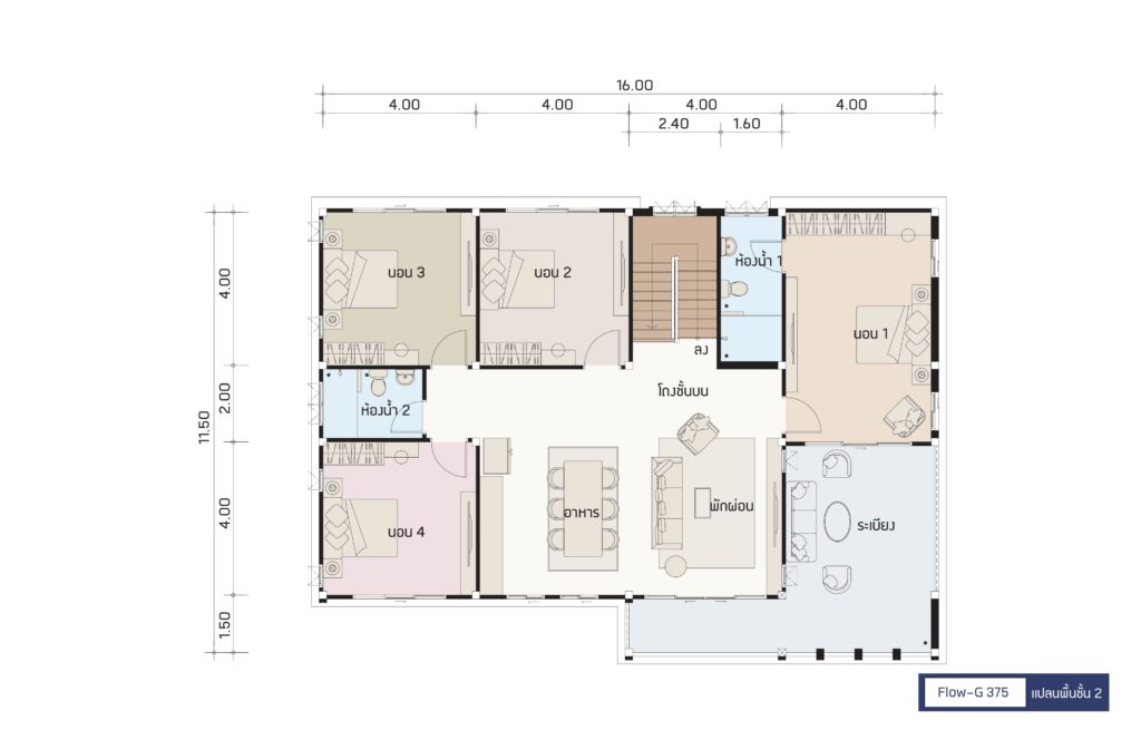
พื้นที่ : 375 ตร.ม. ขนาดที่ดิน : 79 ตร.วา

5 ห้องนอน 3 ห้องน้ำ 3 ที่จอดรถ

รายละเอียด
ช่วงราคา4-6 ล้านบาท
จำนวนชั้น 2 ชั้น
StyleModern
พื้นที่375 ตร.ม.
ขนาดที่ดิน79 ตร.วา
ห้องนอน / ห้องน้ำ5 / 3
ห้องแม่บ้าน / ที่จอดรถ0 / 3
ขนาดเส้นรอบบ้าน12.10x16.60
ขนาดที่ดิน15.70x20.20

แบบบ้านทั้งหมด