บ้านใหม่ครอบครัวขนาดใหญ่

แบบบ้าน Life 368

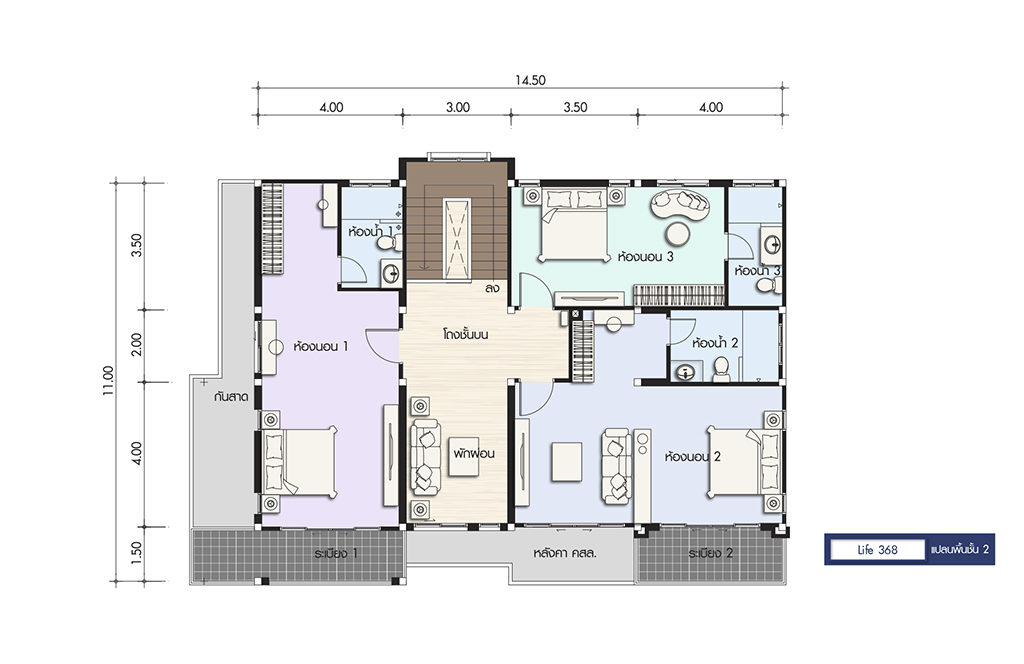
พื้นที่ : 368 ตร.ม. ขนาดที่ดิน : 80 ตร.วา

4 ห้องนอน 5 ห้องน้ำ 2 ที่จอดรถ

รายละเอียด
ช่วงราคา10-15 ล้านบาท
จำนวนชั้น 2 ชั้น
StyleModern
พื้นที่368 ตร.ม.
ขนาดที่ดิน80 ตร.วา
ห้องนอน / ห้องน้ำ4 / 5
ห้องแม่บ้าน / ที่จอดรถ1 / 2
ขนาดเส้นรอบบ้าน16.20x11.80
ขนาดที่ดิน20.20x15.80

แบบบ้านทั้งหมด