บ้านยอดนิยมครอบครัวขนาดใหญ่

แบบบ้าน Loft 377

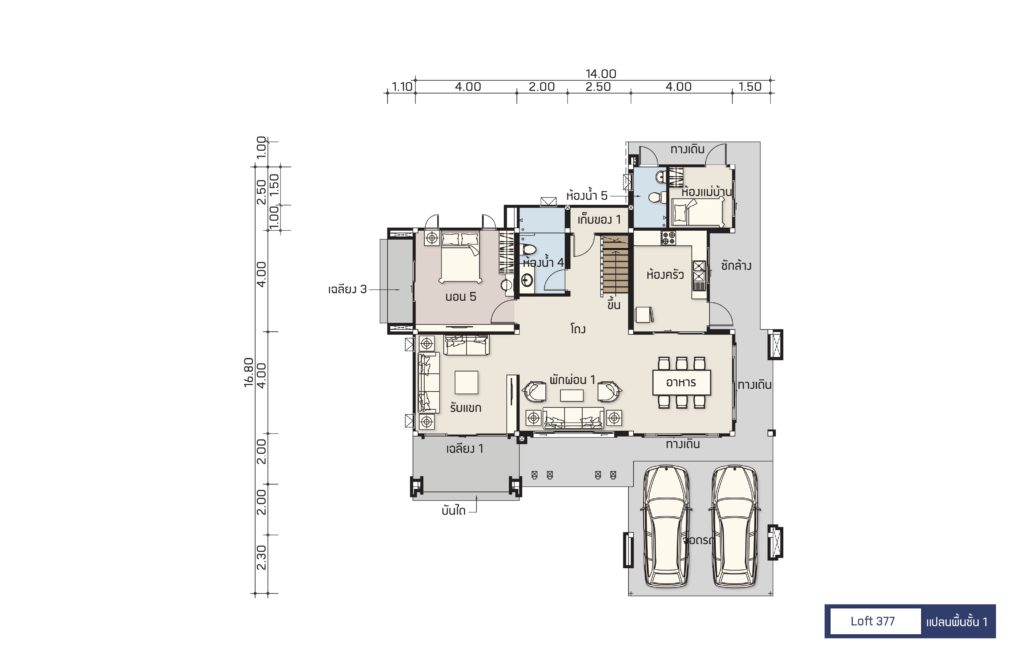
พื้นที่ : 377 ตร.ม. ขนาดที่ดิน : 102 ตร.วา

5 ห้องนอน 4 ห้องน้ำ 2 ที่จอดรถ

รายละเอียด
ช่วงราคา8-10 ล้านบาท
จำนวนชั้น 2 ชั้น
StyleLoft
พื้นที่377 ตร.ม.
ขนาดที่ดิน102 ตร.วา
ห้องนอน / ห้องน้ำ5 / 4
ห้องแม่บ้าน / ที่จอดรถ1 / 2
ขนาดเส้นรอบบ้าน15.60x16.70
ขนาดที่ดิน19.60x20.80

แบบบ้านทั้งหมด