บ้านใหม่ครอบครัวขนาดใหญ่

แบบบ้าน MINIMAL 435

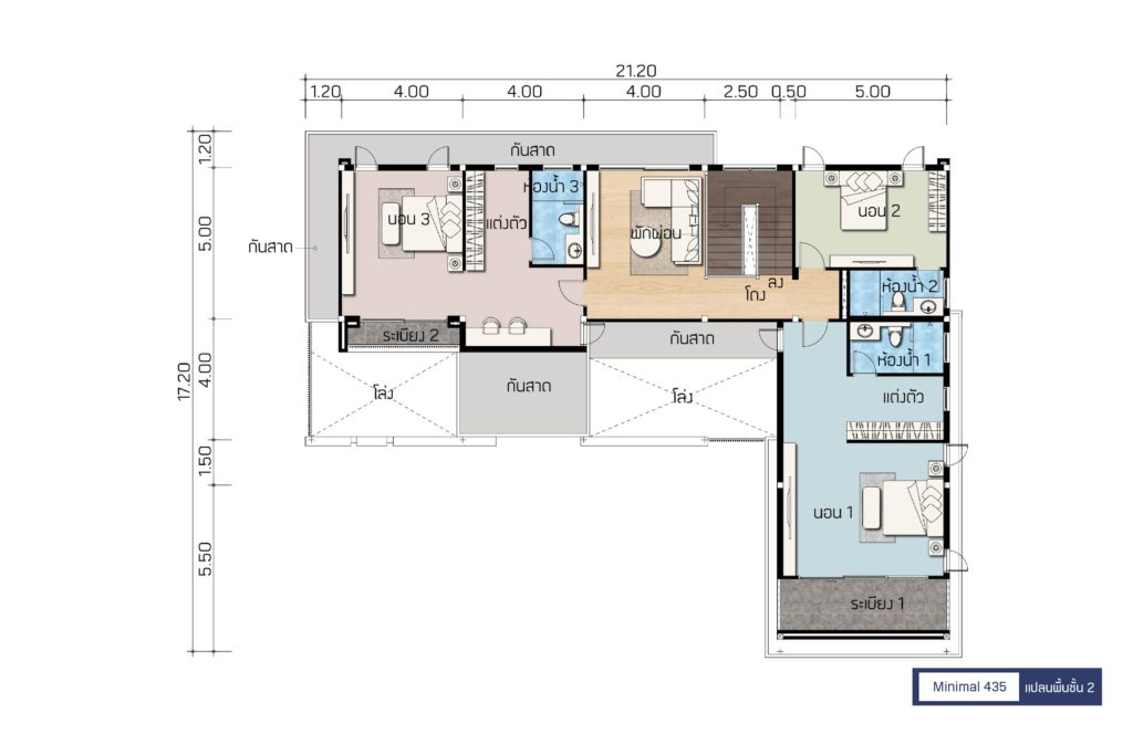
พื้นที่ : 435 ตร.ม. ขนาดที่ดิน : 128 ตร.วา

4 ห้องนอน 5 ห้องน้ำ 2 ที่จอดรถ

รายละเอียด
ช่วงราคา10-15 ล้านบาท
จำนวนชั้น 2 ชั้น
StyleMINIMAL
พื้นที่435 ตร.ม.
ขนาดที่ดิน128 ตร.วา
ห้องนอน / ห้องน้ำ4 / 5
ห้องแม่บ้าน / ที่จอดรถ0 / 2
ขนาดเส้นรอบบ้าน21.70x17.20
ขนาดที่ดิน25.70x21.40

แบบบ้านทั้งหมด