บ้านยอดนิยมครอบครัวขนาดใหญ่

แบบบ้าน Modern Bangkok 9

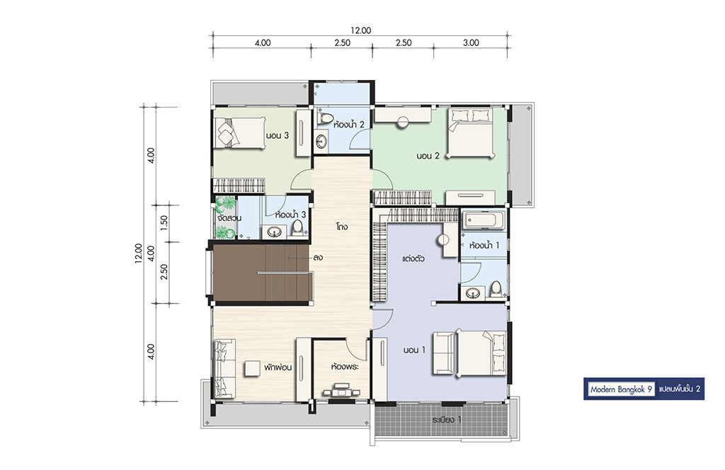
พื้นที่ : 370 ตร.ม. ขนาดที่ดิน : 80 ตร.วา

4 ห้องนอน 4 ห้องน้ำ 2 ที่จอดรถ

รายละเอียด
ช่วงราคา8-10 ล้านบาท
จำนวนชั้น 2 ชั้น
StyleModern Resort
พื้นที่370 ตร.ม.
ขนาดที่ดิน80 ตร.วา
ห้องนอน / ห้องน้ำ4 / 4
ห้องแม่บ้าน / ที่จอดรถ1 / 2
ขนาดเส้นรอบบ้าน12.00x13.50
ขนาดที่ดิน16.00x17.50

แบบบ้านทั้งหมด