บ้านใหม่ครอบครัวขนาดใหญ่

แบบบ้าน Pine 410

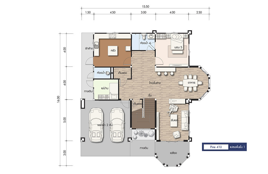
พื้นที่ : 410 ตร.ม. ขนาดที่ดิน : 80 ตร.วา

5 ห้องนอน 4 ห้องน้ำ 2 ที่จอดรถ

รายละเอียด
ช่วงราคา10 ล้านบาทขึ้นไป
จำนวนชั้น 2 ชั้น
StyleModern Classic
พื้นที่410 ตร.ม.
ขนาดที่ดิน80 ตร.วา
ห้องนอน / ห้องน้ำ5 / 4
ห้องแม่บ้าน / ที่จอดรถ1 / 2
ขนาดเส้นรอบบ้าน15.70x17.10
ขนาดที่ดิน21.10x19.70

แบบบ้านทั้งหมด