บ้านยอดนิยมครอบครัวขนาดใหญ่

แบบบ้าน The Modern 481

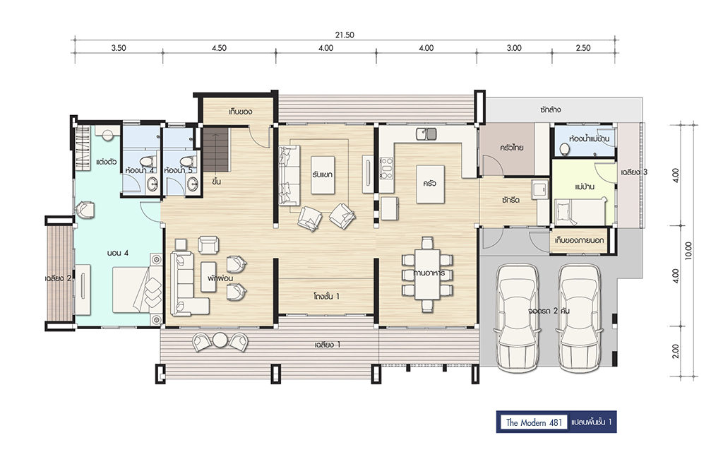
พื้นที่ : 481 ตร.ม. ขนาดที่ดิน : 94 ตร.วา

4 ห้องนอน 5 ห้องน้ำ 2 ที่จอดรถ

รายละเอียด
ช่วงราคา10-15 ล้านบาท
จำนวนชั้น 2 ชั้น
StyleModern
พื้นที่481 ตร.ม.
ขนาดที่ดิน94 ตร.วา
ห้องนอน / ห้องน้ำ4 / 5
ห้องแม่บ้าน / ที่จอดรถ1 / 2
ขนาดเส้นรอบบ้าน23.70x11.40
ขนาดที่ดิน26.60x15.30

แบบบ้านทั้งหมด