บ้านยอดนิยมครอบครัวขนาดใหญ่

แบบบ้าน The Modern 499

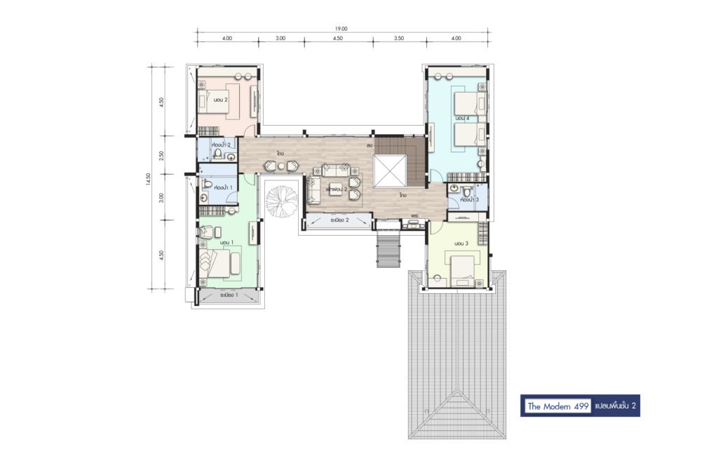
พื้นที่ : 499 ตร.ม. ขนาดที่ดิน : 161 ตร.วา

4 ห้องนอน 5 ห้องน้ำ 3 ที่จอดรถ

รายละเอียด
ช่วงราคา10-15 ล้านบาท
จำนวนชั้น 2 ชั้น
StyleModern Tropical
พื้นที่499 ตร.ม.
ขนาดที่ดิน161 ตร.วา
ห้องนอน / ห้องน้ำ4 / 5
ห้องแม่บ้าน / ที่จอดรถ1 / 3
ขนาดเส้นรอบบ้าน19.75x23.30
ขนาดที่ดิน23.75x27.30

แบบบ้านทั้งหมด

ซีคอน บริษัทซีคอน ซีคอนรับสร้างบ้าน สมาคมธุรกิจรับสร้างบ้าน รับสร้างบ้าน รับออกแบบบ้าน แบบบ้านโมเดิร์น แบบบ้านสองชั้น สร้างบ้านโคราช สร้างบ้านต่างจังหวัด ทำสวน