บ้านใหม่ครอบครัวขนาดใหญ่

Your Home 409

พื้นที่ : 409 ตร.ม. ขนาดที่ดิน : 85 ตร.วา

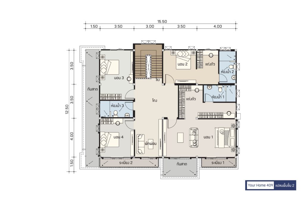
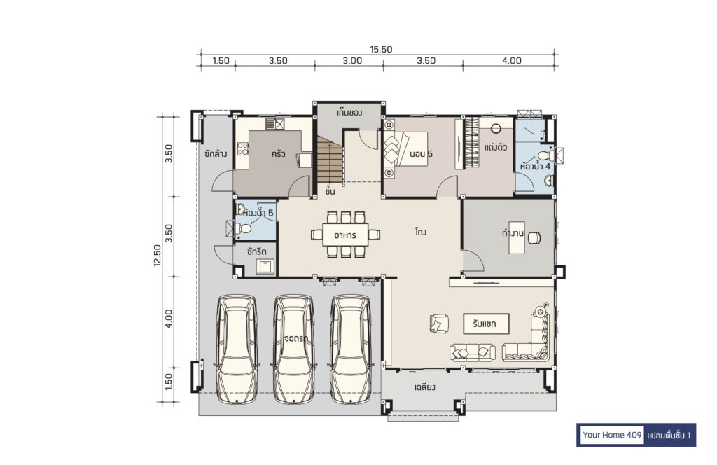
5 ห้องนอน 5 ห้องน้ำ 3 ที่จอดรถ

รายละเอียด
ช่วงราคา10 ล้านบาทขึ้นไป
จำนวนชั้น 2 ชั้น
StyleModern
พื้นที่409 ตร.ม.
ขนาดที่ดิน85 ตร.วา
ห้องนอน / ห้องน้ำ5 / 5
ห้องแม่บ้าน / ที่จอดรถ0 / 3
ขนาดเส้นรอบบ้าน16.35x14.20
ขนาดที่ดิน19.70x17.30

แบบบ้านทั้งหมด