บ้านยอดนิยมครอบครัวขนาดเล็ก

แบบบ้าน Sher 176

พื้นที่ : 176 ตร.ม. ขนาดที่ดิน : 47 ตร.วา

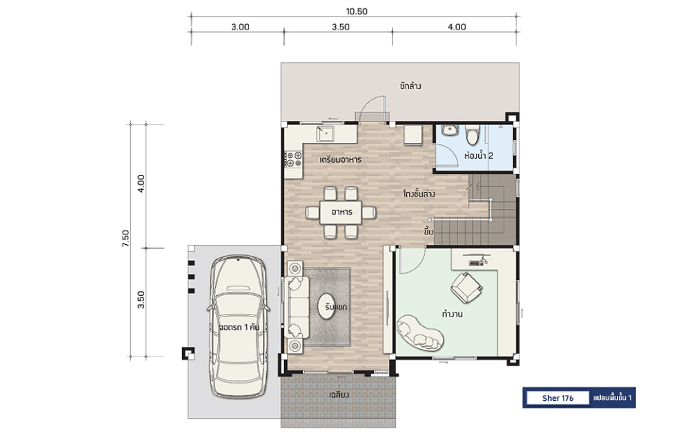
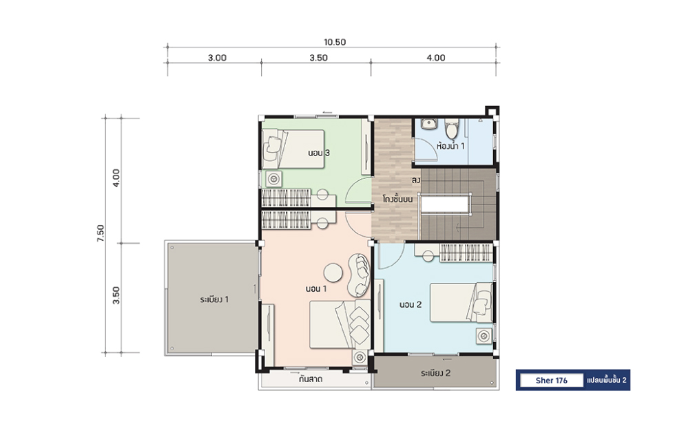
3 ห้องนอน 2 ห้องน้ำ 1 ที่จอดรถ

รายละเอียด
ช่วงราคา3 ล้านบาทขึ้นไป
จำนวนชั้น 2 ชั้น
Style
พื้นที่176 ตร.ม.
ขนาดที่ดิน47 ตร.วา
ห้องนอน / ห้องน้ำ3 / 2
ห้องแม่บ้าน / ที่จอดรถ0 / 1
ขนาดเส้นรอบบ้าน10.50x7.50
ขนาดที่ดิน14.70x12.80

แบบบ้านทั้งหมด