บ้านยอดนิยมครอบครัวขนาดเล็ก

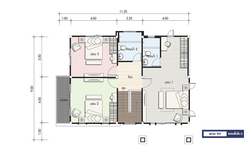
แบบบ้าน Wish 199

พื้นที่ : 199 ตร.ม. ขนาดที่ดิน : 54 ตร.วา

3 ห้องนอน 3 ห้องน้ำ 2 ที่จอดรถ

รายละเอียด
ช่วงราคา4-6 ล้านบาท
จำนวนชั้น 2 ชั้น
Style
พื้นที่199 ตร.ม.
ขนาดที่ดิน54 ตร.วา
ห้องนอน / ห้องน้ำ3 / 3
ห้องแม่บ้าน / ที่จอดรถ0 / 2
ขนาดเส้นรอบบ้าน11.65x9.80
ขนาดที่ดิน15.65x13.70

แบบบ้านทั้งหมด