บ้านใหม่ครอบครัวขนาดใหญ่

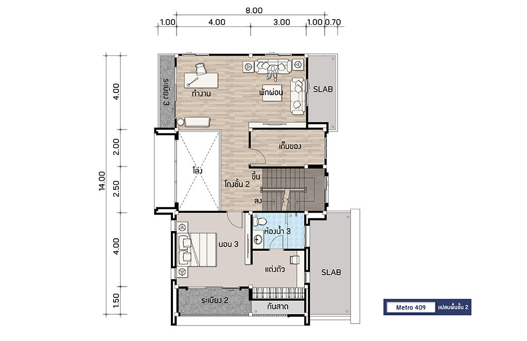
แบบบ้าน Metro 409

พื้นที่ : 409 ตร.ม. ขนาดที่ดิน : 80 ตร.วา

4 ห้องนอน 5 ห้องน้ำ 2 ที่จอดรถ

รายละเอียด
ช่วงราคา10 ล้านบาทขึ้นไป
จำนวนชั้น 3 ชั้น
StyleModern
พื้นที่409 ตร.ม.
ขนาดที่ดิน80 ตร.วา
ห้องนอน / ห้องน้ำ4 / 5
ห้องแม่บ้าน / ที่จอดรถ0 / 2
ขนาดเส้นรอบบ้าน11.70x15.20
ขนาดที่ดิน15.50x20.50

แบบบ้านทั้งหมด