บ้านยอดนิยมครอบครัวขนาดเล็ก

แบบบ้าน Sher 168

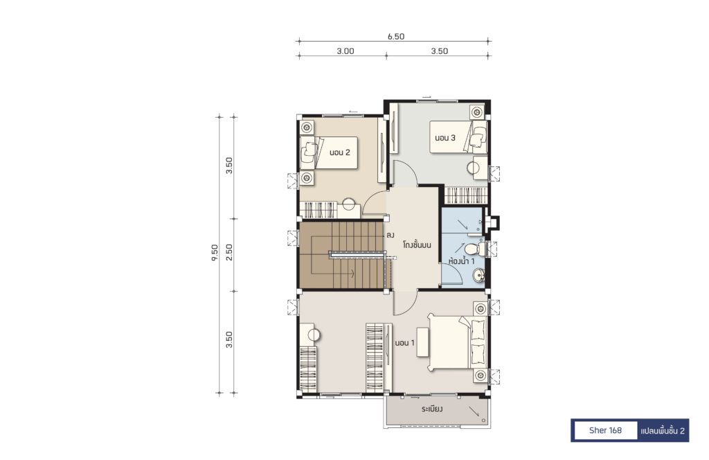
พื้นที่ : 168 ตร.ม. ขนาดที่ดิน : 51 ตร.วา

3 ห้องนอน 2 ห้องน้ำ 2 ที่จอดรถ

รายละเอียด
ช่วงราคา3 ล้านบาทขึ้นไป
จำนวนชั้น 2 ชั้น
Style
พื้นที่168 ตร.ม.
ขนาดที่ดิน51 ตร.วา
ห้องนอน / ห้องน้ำ3 / 2
ห้องแม่บ้าน / ที่จอดรถ0 / 2
ขนาดเส้นรอบบ้าน6.70x11.30
ขนาดที่ดิน11.70x15.30

แบบบ้านทั้งหมด