บ้านยอดนิยมครอบครัวขนาดกลาง

แบบบ้าน First Home 7

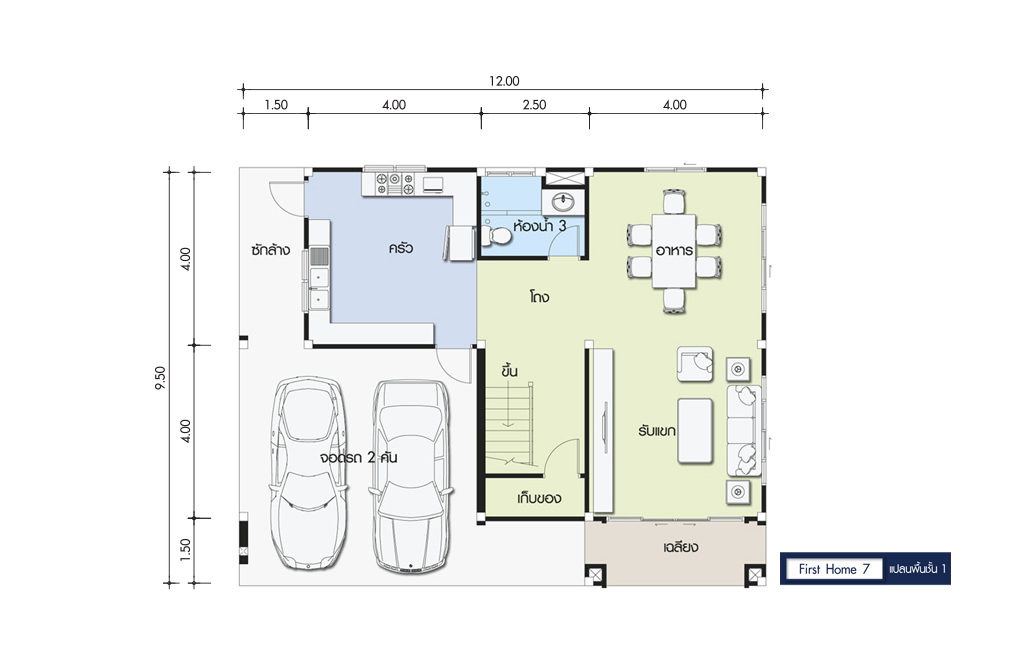
พื้นที่ : 226 ตร.ม. ขนาดที่ดิน : 58 ตร.วา

3 ห้องนอน 3 ห้องน้ำ 2 ที่จอดรถ

รายละเอียด
ช่วงราคา4-6 ล้านบาท
จำนวนชั้น 2 ชั้น
StyleTropical
พื้นที่226 ตร.ม.
ขนาดที่ดิน58 ตร.วา
ห้องนอน / ห้องน้ำ3 / 3
ห้องแม่บ้าน / ที่จอดรถ0 / 2
ขนาดเส้นรอบบ้าน12.00x9.50
ขนาดที่ดิน16.00x13.50

แบบบ้านทั้งหมด