บ้านยอดนิยมครอบครัวขนาดกลาง

แบบบ้าน Home Office 2

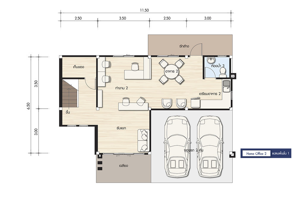
พื้นที่ : 269 ตร.ม. ขนาดที่ดิน : 55 ตร.วา

1 ห้องนอน 3 ห้องน้ำ 2 ที่จอดรถ

รายละเอียด
ช่วงราคา6 ล้านบาทขึ้นไป
จำนวนชั้น 3 ชั้น
Style
พื้นที่269 ตร.ม.
ขนาดที่ดิน55 ตร.วา
ห้องนอน / ห้องน้ำ1 / 3
ห้องแม่บ้าน / ที่จอดรถ0 / 2
ขนาดเส้นรอบบ้าน6.50x11.50
ขนาดที่ดิน16.70x14.50

แบบบ้านทั้งหมด