บ้านยอดนิยมครอบครัวขนาดกลาง

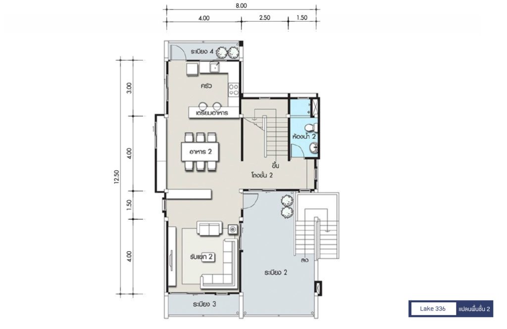
แบบบ้าน Lake 336

พื้นที่ : 336 ตร.ม. ขนาดที่ดิน : 76 ตร.วา

3 ห้องนอน 2 ห้องน้ำ 1 ที่จอดรถ

รายละเอียด
ช่วงราคา6-8 ล้านบาท
จำนวนชั้น 3 ชั้น
StyleThai Modern
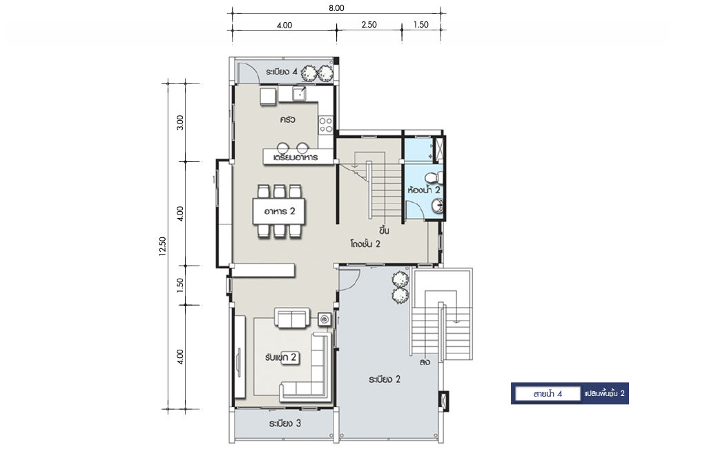
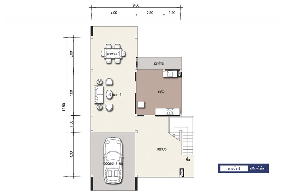
พื้นที่336 ตร.ม.
ขนาดที่ดิน76 ตร.วา
ห้องนอน / ห้องน้ำ3 / 2
ห้องแม่บ้าน / ที่จอดรถ0 / 1
ขนาดเส้นรอบบ้าน8.00x12.50
ขนาดที่ดิน14.70x20.70

แบบบ้านทั้งหมด