บ้านใหม่ครอบครัวขนาดเล็ก

แบบบ้าน Life Box 192

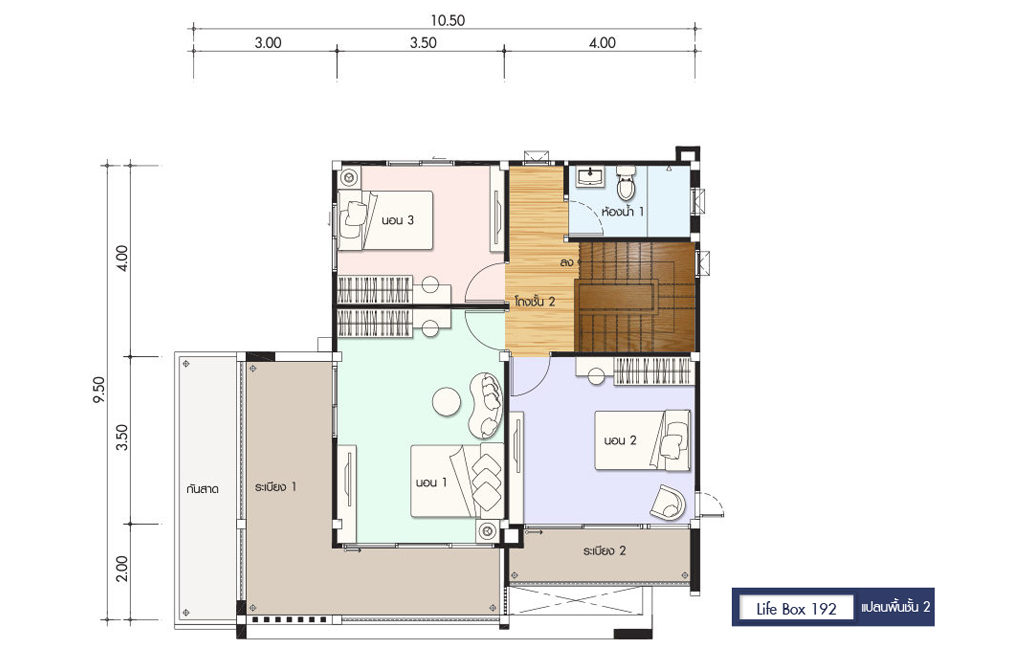
พื้นที่ : 192 ตร.ม. ขนาดที่ดิน : 51 ตร.วา

3 ห้องนอน 2 ห้องน้ำ 1 ที่จอดรถ

รายละเอียด
ช่วงราคา4-6 ล้านบาท
จำนวนชั้น 2 ชั้น
StyleModern
พื้นที่192 ตร.ม.
ขนาดที่ดิน51 ตร.วา
ห้องนอน / ห้องน้ำ3 / 2
ห้องแม่บ้าน / ที่จอดรถ0 / 1
ขนาดเส้นรอบบ้าน10.70x9.70
ขนาดที่ดิน14.70x13.90

แบบบ้านทั้งหมด

บริษัทรับสร้างบ้าน บริษัทรับสร้างบ้านที่ดีที่สุด ซีคอนโฮมรับสร้างบ้าน แบบบ้านใหม่ แบบบ้าน2ชั้น รับเหมาก่อสร้าง