บ้านยอดนิยมครอบครัวขนาดกลาง

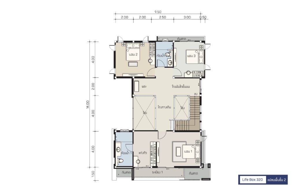
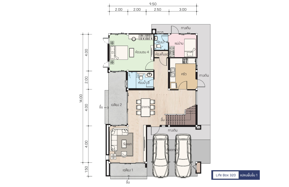
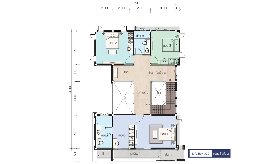
แบบบ้าน Life Box 320

พื้นที่ : 320 ตร.ม. ขนาดที่ดิน : 68 ตร.วา

4 ห้องนอน 3 ห้องน้ำ 2 ที่จอดรถ

รายละเอียด
ช่วงราคา8 ล้านบาทขึ้นไป
จำนวนชั้น 2 ชั้น
StyleModern
พื้นที่320 ตร.ม.
ขนาดที่ดิน68 ตร.วา
ห้องนอน / ห้องน้ำ4 / 3
ห้องแม่บ้าน / ที่จอดรถ0 / 2
ขนาดเส้นรอบบ้าน10.10x15.30
ขนาดที่ดิน14.10x19.30

แบบบ้านทั้งหมด

ซีคอนโฮมรับสร้างบ้าน บริษัทซีคอนโฮม บริษัทรับสร้างบ้าน ซีคอน แบบบ้านใหม่ แบบบ้านโมเดิร์น แบบบ้านสองชั้น ออกแบบบ้าน