บ้านยอดนิยมครอบครัวขนาดเล็ก

แบบบ้าน Mini Colour 2

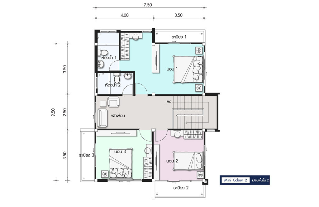
พื้นที่ : 198 ตร.ม. ขนาดที่ดิน : 56 ตร.วา

4 ห้องนอน 3 ห้องน้ำ 2 ที่จอดรถ

รายละเอียด
ช่วงราคา4-6 ล้านบาท
จำนวนชั้น 2 ชั้น
StyleModern Tropical
พื้นที่198 ตร.ม.
ขนาดที่ดิน56 ตร.วา
ห้องนอน / ห้องน้ำ4 / 3
ห้องแม่บ้าน / ที่จอดรถ0 / 2
ขนาดเส้นรอบบ้าน9.50x9.00
ขนาดที่ดิน14.10x15.70

แบบบ้านทั้งหมด