บ้านใหม่ครอบครัวขนาดเล็ก

แบบบ้าน Newport 128

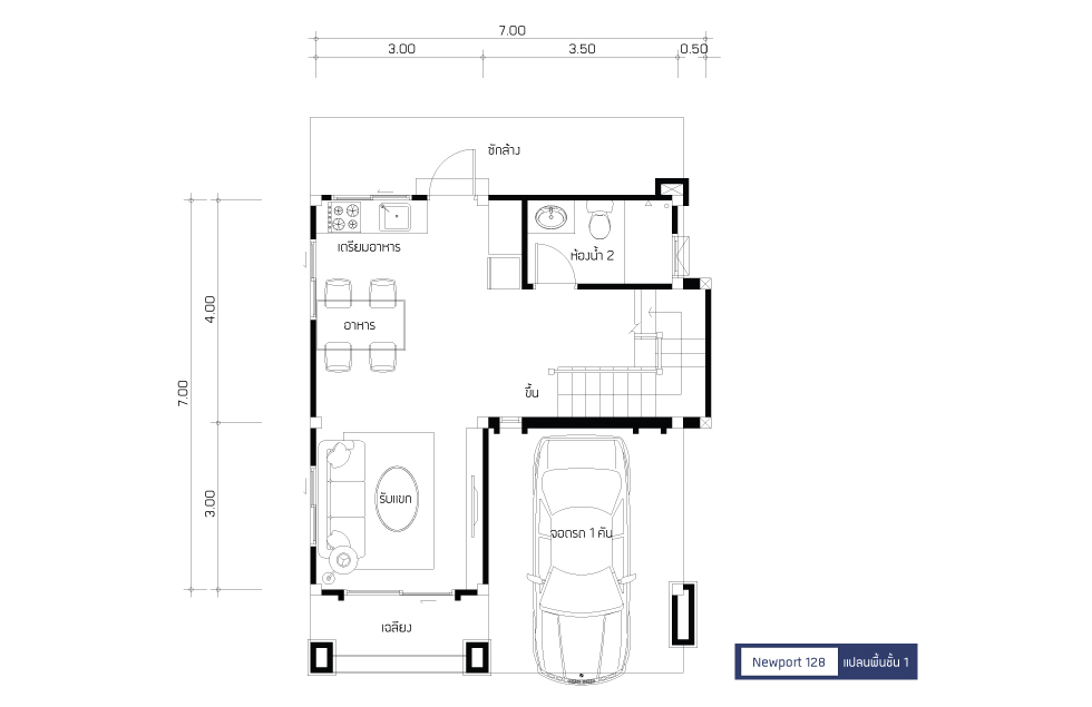
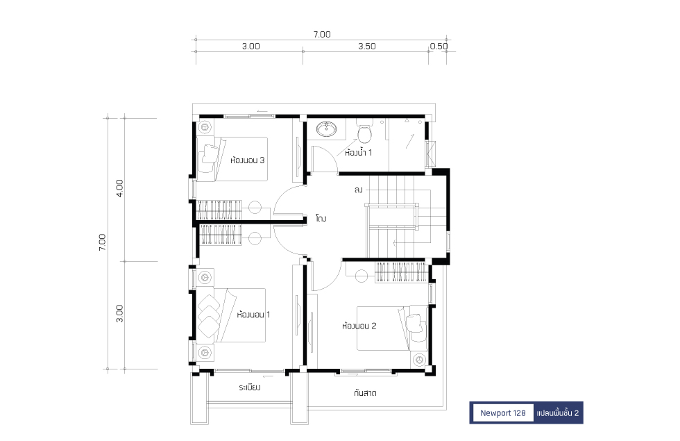
พื้นที่ : 128 ตร.ม. ขนาดที่ดิน : 33 ตร.วา

3 ห้องนอน 2 ห้องน้ำ 1 ที่จอดรถ

รายละเอียด
ช่วงราคา3 ล้านบาทขึ้นไป
จำนวนชั้น 2 ชั้น
StyleNewport
พื้นที่128 ตร.ม.
ขนาดที่ดิน33 ตร.วา
ห้องนอน / ห้องน้ำ3 / 2
ห้องแม่บ้าน / ที่จอดรถ0 / 1
ขนาดเส้นรอบบ้าน6.70x8.20
ขนาดที่ดิน10.70x12.20

แบบบ้านทั้งหมด

บริษัทรับสร้างบ้าน บริษัทรับสร้างบ้านที่ดีที่สุด ซีคอนโฮมรับสร้างบ้าน แบบบ้านใหม่ แบบบ้าน2ชั้น รับเหมาก่อสร้าง