บ้านยอดนิยมครอบครัวขนาดกลาง

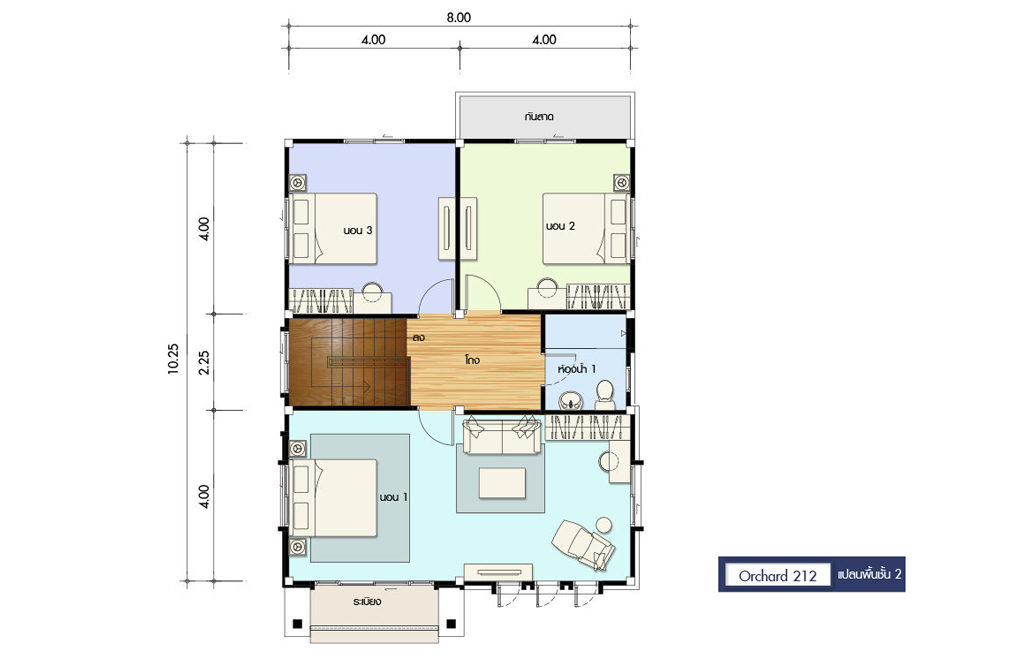
แบบบ้าน Orchard 212

พื้นที่ : 212 ตร.ม. ขนาดที่ดิน : 47 ตร.วา

4 ห้องนอน 2 ห้องน้ำ 0 ที่จอดรถ

รายละเอียด
ช่วงราคา4-6 ล้านบาท
จำนวนชั้น 2 ชั้น
Styleบ้านสวน
พื้นที่212 ตร.ม.
ขนาดที่ดิน47 ตร.วา
ห้องนอน / ห้องน้ำ4 / 2
ห้องแม่บ้าน / ที่จอดรถ0 / 0
ขนาดเส้นรอบบ้าน8.20x11.50
ขนาดที่ดิน12.20x15.50

แบบบ้านทั้งหมด

บริษัทรับสร้างบ้าน บริษัทรับสร้างบ้านที่ดีที่สุด ซีคอนโฮมรับสร้างบ้าน แบบบ้านใหม่ แบบบ้าน2ชั้น รับเหมาก่อสร้าง สร้างบ้านกรุงเทพ