บ้านยอดนิยมครอบครัวขนาดกลาง

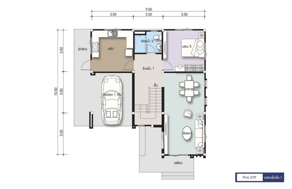
แบบบ้าน Plus 209

พื้นที่ : 209 ตร.ม. ขนาดที่ดิน : 77 ตร.วา

5 ห้องนอน 2 ห้องน้ำ 1 ที่จอดรถ

รายละเอียด
ช่วงราคา4-6 ล้านบาท
จำนวนชั้น 2 ชั้น
StyleModern
พื้นที่209 ตร.ม.
ขนาดที่ดิน77 ตร.วา
ห้องนอน / ห้องน้ำ5 / 2
ห้องแม่บ้าน / ที่จอดรถ0 / 1
ขนาดเส้นรอบบ้าน9.70x11.60
ขนาดที่ดิน13.70x15.60

แบบบ้านทั้งหมด