บ้านยอดนิยมครอบครัวขนาดกลาง

แบบบ้าน Plus 238

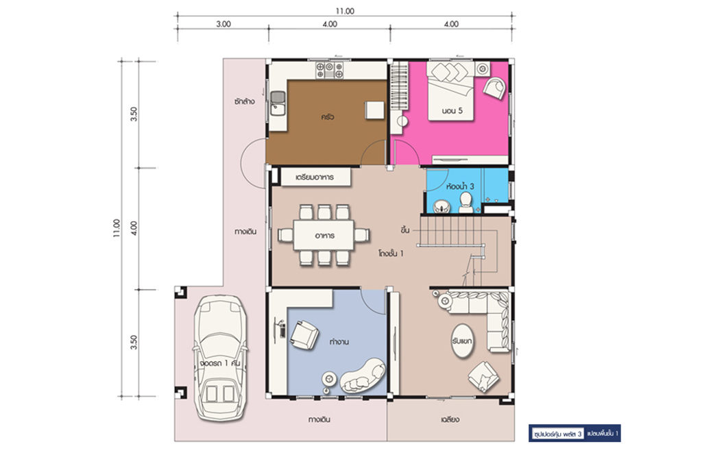
พื้นที่ : 238 ตร.ม. ขนาดที่ดิน : 62 ตร.วา

5 ห้องนอน 3 ห้องน้ำ 1 ที่จอดรถ

รายละเอียด
ช่วงราคา4-6 ล้านบาท
จำนวนชั้น 2 ชั้น
StyleModern
พื้นที่238 ตร.ม.
ขนาดที่ดิน62 ตร.วา
ห้องนอน / ห้องน้ำ5 / 3
ห้องแม่บ้าน / ที่จอดรถ0 / 1
ขนาดเส้นรอบบ้าน11.00x11.00
ขนาดที่ดิน15.20x16.30

แบบบ้านทั้งหมด