บ้านใหม่ครอบครัวขนาดเล็ก

แบบบ้าน PRIMO 180

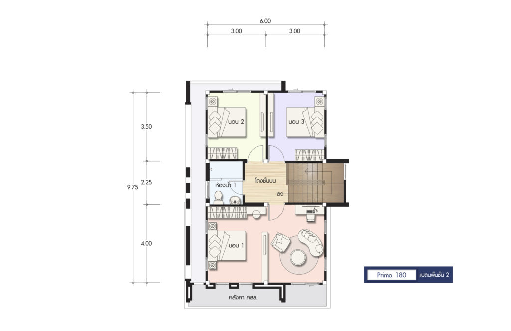
พื้นที่ : 180 ตร.ม. ขนาดที่ดิน : 39 ตร.วา

3 ห้องนอน 2 ห้องน้ำ 1 ที่จอดรถ

รายละเอียด
ช่วงราคา3-4 ล้านบาท
จำนวนชั้น 2 ชั้น
StyleModern
พื้นที่180 ตร.ม.
ขนาดที่ดิน39 ตร.วา
ห้องนอน / ห้องน้ำ3 / 2
ห้องแม่บ้าน / ที่จอดรถ0 / 1
ขนาดเส้นรอบบ้าน8.20x11.15
ขนาดที่ดิน11.20x13.95

แบบบ้านทั้งหมด

ซีคอนรับสร้างบ้าน บริษัทรับสร้างบ้าน บริษัทซีคอน รับออกแบบบ้าน รับเหมาก่อสร้าง แบบบ้านโมเดิร์น แบบบ้านสองชั้น สร้างบ้านกทม บริษัทรับเหมาก่อสร้าง