บ้านยอดนิยมครอบครัวขนาดกลาง

แบบบ้าน Smart & Save 288

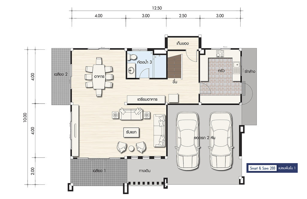
พื้นที่ : 288 ตร.ม. ขนาดที่ดิน : 68 ตร.วา

3 ห้องนอน 3 ห้องน้ำ 2 ที่จอดรถ

รายละเอียด
ช่วงราคา6 ล้านบาทขึ้นไป
จำนวนชั้น 2 ชั้น
StyleModern Tropical
พื้นที่288 ตร.ม.
ขนาดที่ดิน68 ตร.วา
ห้องนอน / ห้องน้ำ3 / 3
ห้องแม่บ้าน / ที่จอดรถ0 / 2
ขนาดเส้นรอบบ้าน12.50x10.00
ขนาดที่ดิน17.80x15.10

แบบบ้านทั้งหมด