บ้านใหม่ครอบครัวขนาดกลาง

แบบบ้าน Thames 202

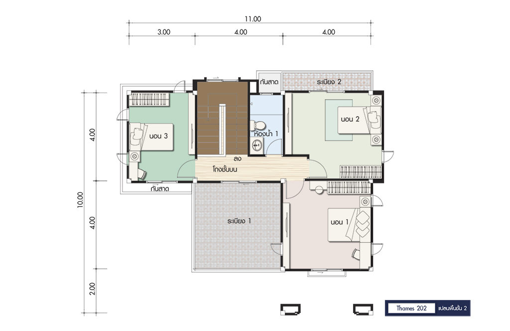
พื้นที่ : 202 ตร.ม. ขนาดที่ดิน : 54 ตร.วา

3 ห้องนอน 2 ห้องน้ำ 1 ที่จอดรถ

รายละเอียด
ช่วงราคา4-6 ล้านบาท
จำนวนชั้น 2 ชั้น
Style
พื้นที่202 ตร.ม.
ขนาดที่ดิน54 ตร.วา
ห้องนอน / ห้องน้ำ3 / 2
ห้องแม่บ้าน / ที่จอดรถ / 1
ขนาดเส้นรอบบ้าน11.00x10.00
ขนาดที่ดิน15.00x14.00

แบบบ้านทั้งหมด