บ้านยอดนิยมครอบครัวขนาดเล็ก

แบบบ้าน Wish 145

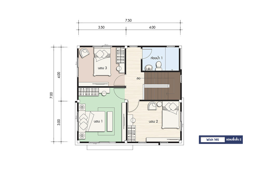
พื้นที่ : 145 ตร.ม. ขนาดที่ดิน : 33 ตร.วา

3 ห้องนอน 2 ห้องน้ำ 1 ที่จอดรถ

รายละเอียด
ช่วงราคา3 ล้านบาทขึ้นไป
จำนวนชั้น 2 ชั้น
StyleModern
พื้นที่145 ตร.ม.
ขนาดที่ดิน33 ตร.วา
ห้องนอน / ห้องน้ำ3 / 2
ห้องแม่บ้าน / ที่จอดรถ0 / 1
ขนาดเส้นรอบบ้าน7.70x7.20
ขนาดที่ดิน11.70x11.20

แบบบ้านทั้งหมด