บ้านใหม่ครอบครัวขนาดกลาง

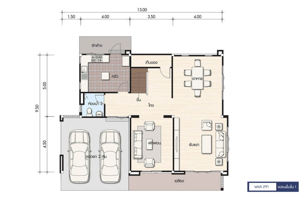
แบบบ้าน Wish 291

พื้นที่ : 291 ตร.ม. ขนาดที่ดิน : 70 ตร.วา

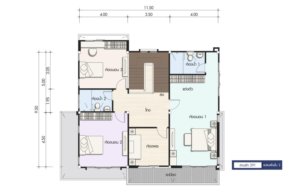
3 ห้องนอน 3 ห้องน้ำ 2 ที่จอดรถ

รายละเอียด
ช่วงราคา6-8 ล้านบาท
จำนวนชั้น 2 ชั้น
StyleModern
พื้นที่291 ตร.ม.
ขนาดที่ดิน70 ตร.วา
ห้องนอน / ห้องน้ำ3 / 3
ห้องแม่บ้าน / ที่จอดรถ0 / 2
ขนาดเส้นรอบบ้าน13.60x12.00
ขนาดที่ดิน17.60x16.00

แบบบ้านทั้งหมด