บ้านใหม่ครอบครัวขนาดกลาง

แบบบ้าน Wish 322

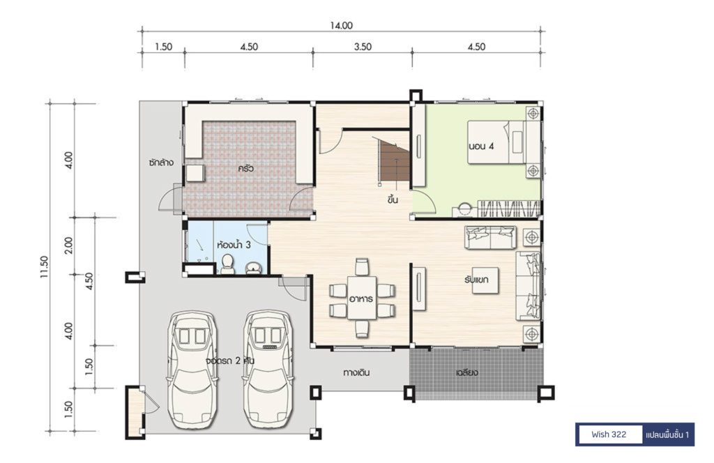
พื้นที่ : 322 ตร.ม. ขนาดที่ดิน : 71 ตร.วา

4 ห้องนอน 3 ห้องน้ำ 2 ที่จอดรถ

รายละเอียด
ช่วงราคา6 ล้านบาทขึ้นไป
จำนวนชั้น 2 ชั้น
StyleModern
พื้นที่322 ตร.ม.
ขนาดที่ดิน71 ตร.วา
ห้องนอน / ห้องน้ำ4 / 3
ห้องแม่บ้าน / ที่จอดรถ0 / 2
ขนาดเส้นรอบบ้าน14.20x11.70
ขนาดที่ดิน18.20x15.70

แบบบ้านทั้งหมด