บ้านใหม่ครอบครัวขนาดกลาง

แบบบ้าน Wish 337

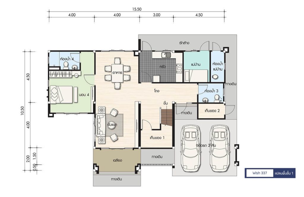
พื้นที่ : 337 ตร.ม. ขนาดที่ดิน : 76 ตร.วา

4 ห้องนอน 4 ห้องน้ำ 2 ที่จอดรถ

รายละเอียด
ช่วงราคา6-8 ล้านบาท
จำนวนชั้น 2 ชั้น
StyleModern
พื้นที่337 ตร.ม.
ขนาดที่ดิน76 ตร.วา
ห้องนอน / ห้องน้ำ4 / 4
ห้องแม่บ้าน / ที่จอดรถ1 / 2
ขนาดเส้นรอบบ้าน16.70x10.70
ขนาดที่ดิน20.70x14.70

แบบบ้านทั้งหมด