บ้านใหม่ครอบครัวขนาดเล็ก

Your Home 134

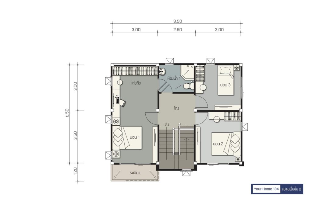
พื้นที่ : 134 ตร.ม. ขนาดที่ดิน : 38 ตร.วา

3 ห้องนอน 2 ห้องน้ำ 1 ที่จอดรถ

รายละเอียด
ช่วงราคา3 ล้านบาทขึ้นไป
จำนวนชั้น 2 ชั้น
Style
พื้นที่134 ตร.ม.
ขนาดที่ดิน38 ตร.วา
ห้องนอน / ห้องน้ำ3 / 2
ห้องแม่บ้าน / ที่จอดรถ0 / 1
ขนาดเส้นรอบบ้าน8.70x9.20
ขนาดที่ดิน11.80x12.70

แบบบ้านทั้งหมด