บ้านใหม่ครอบครัวขนาดกลาง

Your Home 299

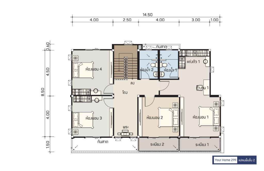
พื้นที่ : 299 ตร.ม. ขนาดที่ดิน : 68 ตร.วา

5 ห้องนอน 3 ห้องน้ำ 3 ที่จอดรถ

รายละเอียด
ช่วงราคา6-8 ล้านบาท
จำนวนชั้น 2 ชั้น
StyleModern
พื้นที่299 ตร.ม.
ขนาดที่ดิน68 ตร.วา
ห้องนอน / ห้องน้ำ5 / 3
ห้องแม่บ้าน / ที่จอดรถ0 / 3
ขนาดเส้นรอบบ้าน11.30x15.00
ขนาดที่ดิน14.60x18.70

แบบบ้านทั้งหมด