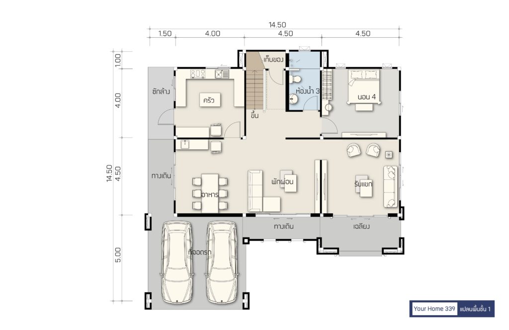
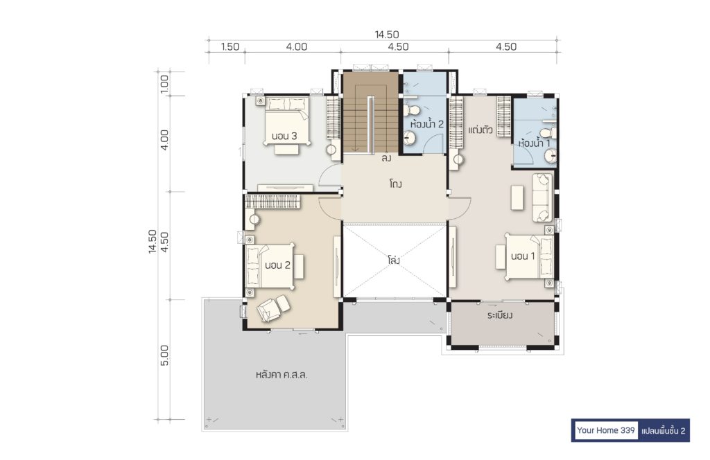
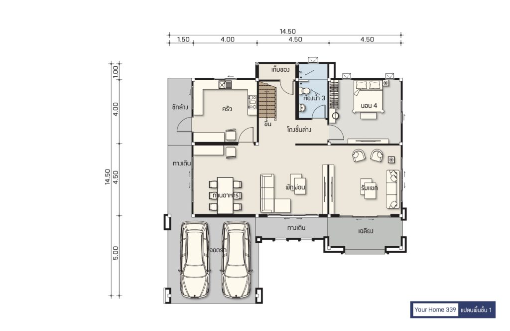
บ้านใหม่ครอบครัวขนาดกลาง

Your Home 339

พื้นที่ : 339 ตร.ม. ขนาดที่ดิน : 87 ตร.วา

4 ห้องนอน 3 ห้องน้ำ 2 ที่จอดรถ

รายละเอียด
ช่วงราคา8-10 ล้านบาท
จำนวนชั้น 2 ชั้น
StyleModern
พื้นที่339 ตร.ม.
ขนาดที่ดิน87 ตร.วา
ห้องนอน / ห้องน้ำ4 / 3
ห้องแม่บ้าน / ที่จอดรถ0 / 2
ขนาดเส้นรอบบ้าน15.10x15.10
ขนาดที่ดิน18.70x18.70

แบบบ้านทั้งหมด