บริษัทรับสร้างบ้าน 14 แบบบ้านใหม่ 2026 Flow Series ยกชีวิตให้เหนือระดับ
บริษัทรับสร้างบ้าน ดีไซน์ใหม่ล่าสุด 2026 กับ 14 แบบบ้าน Flow Series
บริษัทร้าบสร้างบ้านกับแบบบ้านใหม่ ซีรีส์บ้านยกสูงที่ออกแบบเพื่อรองรับการเติบโตของทุกครอบครัวฟังก์ชันครบ ปรับเปลี่ยนได้ พร้อมพื้นที่ใต้ถุนอเนกประสงค์
รับคำปรึกษาฟรี >>คลิ๊ก<<
บริษัทรับสร้างบ้าน กับด้วยแนวคิด Flexible Living
Flow Series คือแนวคิดการรับสร้างบ้านที่ออกแบบให้ “บ้านเติบโตไปพร้อมกับชีวิต”
-
พื้นที่ชั้นบนจัดฟังก์ชันครบ
-
พื้นที่ใต้ถุนรองรับการขยายในอนาคต
-
รองรับการต่อเติมโดยไม่กระทบโครงสร้างหลัก
-
ดีไซน์ทันสมัย สไตล์ Modern
🏡 แบบบ้านทั้ง 14 แบบ
1. FLOW 168
บ้านยกสูง พื้นที่ใช้งานหลักอยู่ชั้น 2 ชั้นล่างปล่อยโล่ง รองรับการต่อเติมในอนาคต เหมาะสำหรับครอบครัวที่ต้องการความยืดหยุ่นสูง
2. FLOW 173
บ้านสไตล์โมเดิร์น ที่ออกแบบมาเพื่อไลฟ์สไตล์คนรุ่นใหม่ โดดเด่นด้วยโทนสี Earth Tone ละมุนตา พื้นที่ชั้นบนออกแบบด้วยรูปแบบ Compact Space ที่ให้มีความรู้สึก Cozy อบอุ่น ดูแลรักษาง่าย มีความคล่องตัวสูง เหมาะสำหรับวัยทำงาน ส่วนชั้นล่างมาพร้อมฟังก์ชัน Flexible Space ที่สามารถปรับเปลี่ยนและขยายได้ตามจังหวะชีวิต จะทำงานหรือสร้างครอบครัว พื้นที่นี้ก็พร้อมสำหรับคุณเสมอ “เพราะบ้านไม่ได้เป็นแค่ที่พัก แต่เป็นพื้นที่ที่โตไปพร้อมกับคุณ”
3. FLOW 206
พื้นที่ใช้งานครบชั้นบน ชั้นล่างปล่อยโล่ง รองรับการขยายในอนาคต
4. FLOW 229
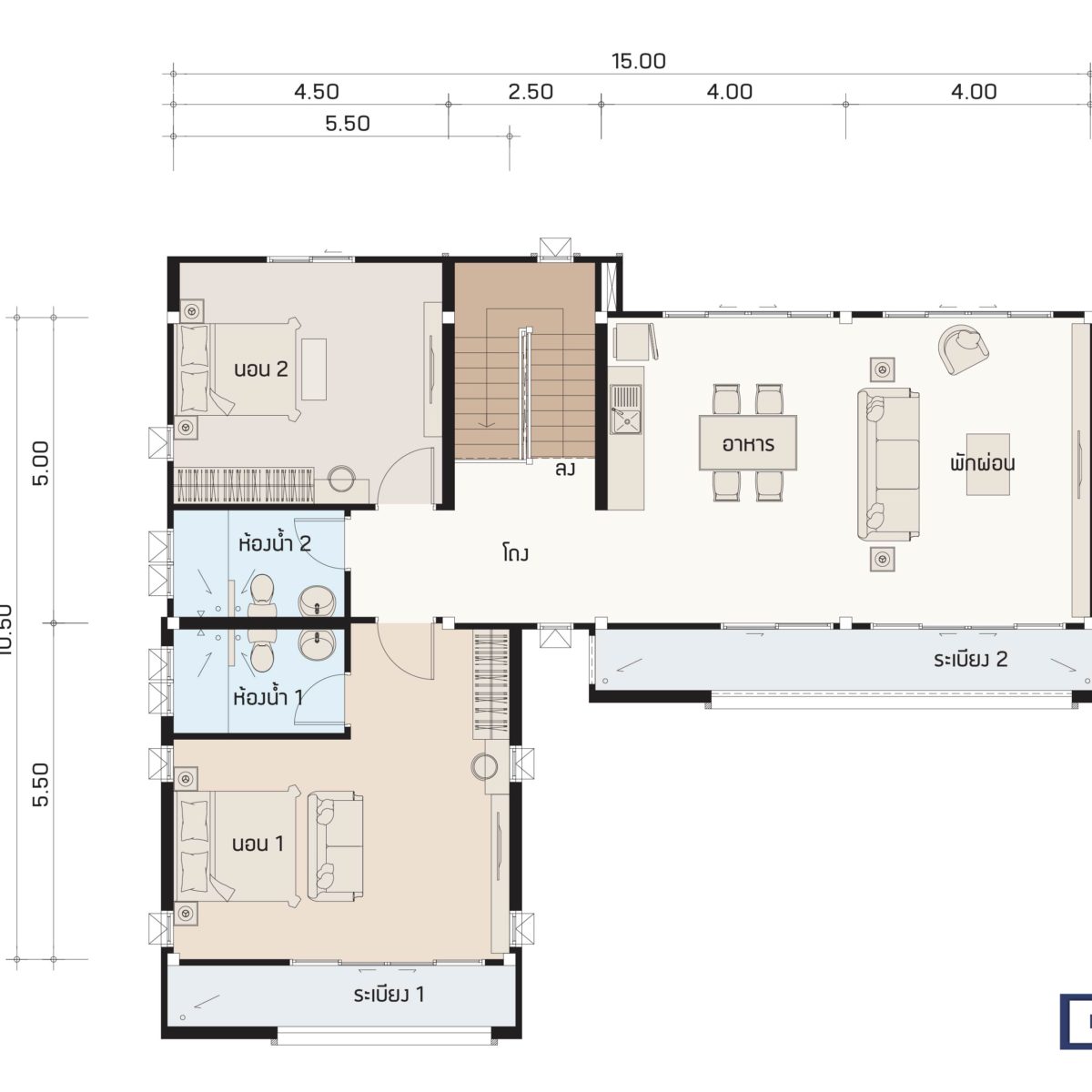
แบบบ้านสไตล์ Modern ที่ออกแบบเป็นทรงตัวแอล (L-Shape) สามารถเปิดรับทัศนียภาพพื้นที่สีเขียวรอบด้านอย่างทั่วถึง ตอบโจทย์คุณภาพชีวิตและการพักผ่อนอย่างแท้จริง แสงธรรมชาตสามารถเข้าถึงทุกพื้นที่ภายในอย่างเหมาะสม เหมาะสำหรับครอบครัวขนาดกลางและขนาดใหญ่ได้อย่างลงตัว
5. FLOW 220
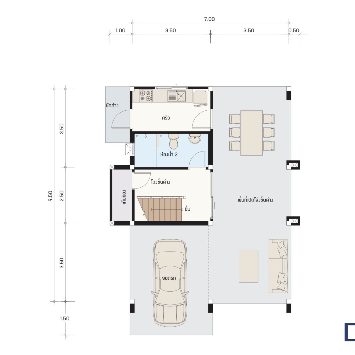
บ้านยกสูง ฟังก์ชันครบชั้นบนพื้นที่ใต้ถุนรองรับกิจกรรมครอบครัว
6. FLOW 221
แบบบ้านสไตล์ Modern อบอุ่น สะดวกสบาย มีการใช้พื้นที่ได้อย่างครบครัวเหมาะสม พื้นที่พักผ่อนเชื่อมต่อกับพื้นที่ทานอาหาร มีการกั้นห้องครัวเป็นสัดส่วน ตอบโจทย์คุณภาพชีวิตและการพักผ่อนอย่างแท้จริง เหมาะสำหรับครอบครัวขนาดเล็กและขนาดกลางได้อย่างลงตัว
7. FLOW 253
บ้านยกสูง รองรับการขยายพื้นที่ในอนาคต
8. FLOW 258
บ้านสไตล์โมเดิร์น ที่ออกแบบด้วยรูปทรงเรขาคณิต สร้างมิติที่โดดเด่น พื้นที่ภายในเป็นแบบ Open Plan เปิดโล่ง เชื่อมต่อทุกฟังก์ชันการใช้งานได้อย่างลื่นไหล ช่วยให้บ้านรู้สึกโปร่ง สบาย รองรับการใช้ชีวิตร่วมกันของสมาชิกในครอบครัวได้อย่างลงตัว พร้อมให้ความสำคัญกับแสงธรรมชาติและการระบายอากาศ เพื่อบรรยากาศที่สดชื่นน่าอยู่ พร้อมที่จอดรถ 2 คัน เหมาะสำหรับครอบครัวขนาดกลางที่มองหาบ้านดีไซน์ทันสมัย ฟังก์ชันครบ และมีเอกลักษณ์ไม่ซ้ำใคร
9. FLOW 281
ฟังก์ชันหลักอยู่ชั้นบน ชั้นล่างรองรับการใช้งานหลากหลาย
10. FLOW 284
บ้านสไตล์โมเดิล ดีไซน์เรียบง่ายแต่มีเอกลักษณ์ ให้บรรยากาศอบอุ่น นุ่มละมุน เหมาะสำหรับครอบครัวขนาดเล็กถึงกลาง รองรับการอยู่อาศัยทุกช่วงวัย พื้นที่ใต้ถุนสามารถปรับใช้งานได้หลากหลาย ทั้งพื้นที่กิจกรรมและพักผ่อน โถงบันไดกั้นเป็นสัดส่วน เพื่อความเป็นส่วนตัวและความปลอดภัย ชั้นบนมีพื้นที่พักผ่อนเชื่อมต่อระเบียงหน้าบ้าน ทำให้โปร่งสบาย พร้อมห้องครัวแยกเป็นสัดส่วน รองรับการทำอาหารได้เต็มที่ ลดปัญหากลิ่นและควัน ตอบโจทย์การใช้ชีวิตประจำวันอย่างลงตัว
11. FLOW 333
บ้านยกสูง รองรับการเติบโตของครอบครัว
12. FLOW 344
บ้านสไตล์โมเดิร์น มาพร้อมกลิ่นอายความอบอุ่นคลาสสิก ด้วยโทนสี Earth Tone ที่กลมกลืนกับธรรมชาติและร่วมสมัยเหนือกาลเวลา ภายในออกแบบด้วยแนวคิด Open Plan Connectivity เชื่อมต่อห้องรับแขกและส่วนรับประทานอาหารอย่างลงตัวให้ความยืดหยุ่นในการใช้ชีวิต (Flexible Living) พิเศษด้วยห้องนอนชั้นล่างที่ครบครัน ตอบโจทย์ครอบครัวขนาดกลางถึงใหญ่ได้อย่างสมบูรณ์ มาพร้อมพื้นที่จอดรถ 2 คัน
13. FLOW 368
พื้นที่ใช้งานครบชั้นบน ใต้ถุนรองรับการขยายในอนาคต
14. FLOW 375
แบบบ้านสไตล์โมเดิร์น โดดเด่นด้วยเส้นสายการออกแบบที่เรียบหรู ทันสมัย โทนสีสบายตา ให้อารมณ์อบอุ่น ผ่อนคลาย และน่าอยู่ พื้นที่ใช้สอยภายในออกแบบให้โปร่งโล่ง เชื่อมต่อทุกฟังก์ชันอย่างลงตัว สามารถรับแสงธรรมชาติ และระบายอากาศได้ดีรอบทิศทาง เหมาะสำหรับครอบครัวขนาดกลางถึงใหญ่ พื้นที่ใต้ถุนรองรับการใช้งานกิจกรรมครอบครัวได้หลากหลาย มาพร้อมพื้นที่จอดรถได้ถึง 3 คัน ตอบโจทย์รองรับการอยู่อาศัยในระยะยาว
📌 จุดเด่นของบริษัทรับสร้างบ้าน Flow Series
-
โครงสร้างแข็งแรง
-
รองรับน้ำท่วมด้วยดีไซน์ยกสูง
-
ปรับฟังก์ชันได้ตามงบประมาณ
-
รองรับการอยู่อาศัยระยะยาว
-
ดีไซน์ไม่ตกยุค
—————————————————————————————————————————————–
สนใจสร้างบ้านสามารถติดต่อตามช่องทางที่อยู่ด้านล่าง
– SEACON Channels –
FACEBOOK MESSENGER : http://m.me/Seacon.Co.Ltd
Line : @seacon หรือคลิก http://line.me/R/ti/p/%40seacon
Tel : 1391










































